Назначение
Распределитель двухпозиционный предназначен для
управления пневматическими приводами в автоматизированных
системах управления технологическими процессами химических,
нефтехимических и других производств.
Принцип действия
По виду управления распределитель является
электропневматическим с ручным дублированием. По способу
управления – с односторонним управлением и пружинным
возвратом.
Конструктивное исполнение распределителей:
РДВ-302 – нормально закрытый (при подаче управляющего
сигнала открывается);
РДВ-303 – нормально открытый (при подаче управляющего
сигнала закрывается);
РДВ-304 – имеет два канала на выходе: первый нормально
закрытый, второй нормально открытый.
Управление распределителем осуществляется блоком управления
БУ-301 (являющимся составной частью распределителя).
Принцип действия распределителей состоит в следующем.
При подаче электрического сигнала на электромагнитную
систему блока управления якорь втягивается в катушку, сопло
управления открывается, а сопла сброса управляющего
пневмосигнала закрываются, давление воздействует на мембрану
пневмопривода, при этом:
для РДВ-302 сопло выхода открывается, а сопло сброса в
атмосферу закрывается;
для РДВ-303 сопло выхода закрывается, а сопло сброса в
атмосферу открывается;
для РДВ-304 сопло выхода первого канала закрывается, а сопло
выхода второго канала открывается, сопло сброса в атмосферу,
соответственно, открывается для первого канала и закрывается
для второго. При снятии электрического сигнала состояние
каналов возвращается в исходное положение.
Исполнения
Распределители РДВ-302, РДВ-303 и РДВ-304 - выпускаются в
нескольких исполнениях в зависимости от напряжения питания,
способа защиты кабеля (труба или металлорукав) и способа
закрепления на объекте в соответствии с таблицами 1, 2 и 3.
Таблица 1
Код
распределителя |
Напряжение, В |
Защита
кабеля |
Способ
присоединения
на объекте |
Тип
пневмопривода |
| РДВ-302 |
~220 |
Труба G 1/2" |
Резьбовое
присоединение |
-- |
| РДВ-302-1 |
~110 |
| РДВ-302-2 |
- 48 |
| РДВ-302-3 |
- 24 |
| РДВ-302-4 |
- 24 |
| РДВ-302-5 |
~220 |
Металлорукав
РЗ-ЦХ-10 |
| РДВ-302-6 |
~110 |
| РДВ-302-7 |
- 48 |
| РДВ-302-8 |
- 24 |
| РДВ-302-9 |
~220 |
Труба G 1/2" |
Стыковое
присоединение
NAMUR |
AT051...AT601 |
| РДВ-302-10 |
~110 |
| РДВ-302-11 |
-48 |
| РДВ-302-12 |
- 24 |
| РДВ-302-13 |
~220 |
Металлорукав
РЗ-ЦХ-10 |
| РДВ-302-14 |
~110 |
| РДВ-302-15 |
- 48 |
| РДВ-302-16 |
- 24 |
| РДВ-302-17 |
~220 |
Труба G 1/2" |
AT651, AT701 |
| РДВ-302-18 |
~110 |
| РДВ-302-19 |
-48 |
| РДВ-302-20 |
- 24 |
| РДВ-302-21 |
~220 |
Металлорукав
РЗ-ЦХ-10 |
| РДВ-302-22 |
~110 |
| РДВ-302-23 |
- 48 |
| РДВ-302-24 |
- 24 |
Таблица 2
| Код распределителя |
Напряжение питания, В |
Защита кабеля |
| РДВ-303 |
~220 |
Труба G 1/2" |
| РДВ-303-1 |
~110 |
| РДВ-303-2 |
- 48 |
| РДВ-303-3 |
- 24 |
| РДВ-303-4 |
~ 220 |
Металлорукав
РЗ-ЦХ-10 |
| РДВ-303-5 |
~ 110 |
| РДВ-303-6 |
- 48 |
| РДВ-303-7 |
- 24 |
Таблица 3
Код
распределителя |
Напряжение, В |
Защита
кабеля |
Способ
присоединения
на объекте |
Тип
пневмопривода |
| РДВ-304 |
~220 |
Труба G 1/2" |
Резьбовое
присоединение |
-- |
| РДВ-304-1 |
~110 |
| РДВ-304-2 |
- 48 |
| РДВ-304-3 |
- 24 |
| РДВ-304-4 |
~220 |
Металлорукав
РЗ-ЦХ-10 |
| РДВ-304-5 |
~110 |
| РДВ-304-6 |
- 48 |
| РДВ-304-7 |
- 24 |
| РДВ-304-8 |
~220 |
Труба G 1/2" |
Стыковое
присоединение
NAMUR |
AT051,AT101,
АТ201,АТ251,
АТ301,АТ351,
АТ401,АТ451,
АТ501,АТ551,
АТ601
|
| РДВ-304-9 |
~110 |
| РДВ-304-10 |
- 48 |
| РДВ-304-11 |
- 24 |
| РДВ-304-12 |
~220 |
Металлорукав
РЗ-ЦХ-10 |
| РДВ-304-13 |
~110 |
| РДВ-304-14 |
- 48 |
| РДВ-304-15 |
- 24 |
| РДВ-304-16 |
~220 |
Труба G 1/2" |
Стыковое
присоединение
NAMUR
|
AT651 |
| РДВ-304-17 |
~110 |
| РДВ-304-18 |
- 48 |
| РДВ-304-19 |
- 24 |
| РДВ-304-20 |
~220 |
Металлорукав
РЗ-ЦХ-10 |
| РДВ-304-21 |
~110 |
| РДВ-304-22 |
- 48 |
| РДВ-304-23 |
- 24 |
| РДВ-304-24 |
~220 |
Труба G 1/2" |
АТ701 |
| РДВ-304-25 |
~110 |
| РДВ-304-26 |
- 48 |
| РДВ-304-27 |
- 24 |
| РДВ-304-28 |
~220 |
Металлорукав
РЗ-ЦХ-10 |
| РДВ-304-29 |
~110 |
| РДВ-304-30 |
- 48 |
| РДВ-304-31 |
- 24 |
Технические характеристики
Распределитель является средством технологического
оснащения и не имеет точностных характеристик.
Диапазон рабочих давлений – от 0,1 до 0,8 МПа (от 1,0 до 8,0
кгс/см2).
Условный проход Ду=6 мм.
Пропускная способность Кv=0,7 м3/ч.
Диапазон рабочих температур – от минус 50 до плюс 70°С.
По защищенности от воздействия окружающей среды
распределитель имеет исполнение защищенное от попадания
твердых тел и воды (IP54).
Потребляемая электрическая мощность – не более 4,5 Вт или 8
В·А.
Габаритные размеры – не более 120х100х65 мм для РДВ-302 и
РДВ-303 и не более 120х110х80 мм для РДВ-304.
Масса – не более 1,2 кг для РДВ-302 и РДВ-303 и не более 1,5
кг для РДВ-304.
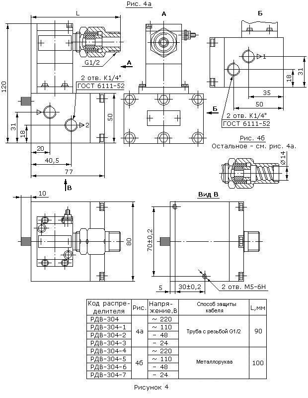
Габаритные и установочные размеры приведены на рисунках
1...5.
Взрывозащищенность
Управление клапаном осуществляется блоком управления
БУ-301 с уровнем взрывозащиты "взрывонепроницаемая оболочка"
с маркировкой 1ЕхdIICT6 и соответствующим ГОСТ Р51330.0-99 и
ГОСТ Р51330.1-99.
Устройство соответствует всем требованиям "Общих правил
взрывобезопасности для взрывопожароопасных химических,
нефтехимических и нефтеперерабатывающих производств" ПБ
09-170-97 и пригодно для использования в системах
противоаварийной автоматической защиты (ПАЗ).
Монтаж и эксплуатация
Распределитель монтируют во взрывоопасных зонах
непосредственно у пневмопривода или на пневмоприводе
(стыковое присоединение NAMUR) и заземляют.
Монтаж распределителя осуществляется кабелем с наружным
диаметром 7 – 8,5 мм с заполнением между жилами. Монтаж
кабеля ведется в стальной газовой трубе диаметром 1/2" или
металлорукаве РЗ-ЦХ-10.
В процессе монтажа и эксплуатации необходимо осуществлять
контроль ширины щели всех плоских взрывонепроницаемых
соединений, которая не должна превышать 0,1 мм.
Присоединение внешних воздушных коммуникаций – отверстия
К1/4" ГОСТ 6111-52.
Гарантии изготовителя
Гарантийный срок хранения - 3 года.
Гарантийный срок эксплуатации - 18 месяцев.
Комплектность
В комплект поставки реле входят:
- распределитель двухпозиционный взрывозащищенный РДВ-302
или РДВ-303 или РДВ-304 - 1 шт.
- Комплект монтажных частей (только для распределителей со
стыковым присоединением NAMUR) - 1 компл.
- руководство по эксплуатации - 1 экз.
- паспорт - 1 экз.
Пример записи обозначения при заказе
Пример записи обозначения распределителя РДВ-302 на
напряжение питания 220 В переменного тока с защитой кабеля
металлорукавом и резьбовым присоединением на объекте:
"Распределитель двухпозиционный взрывозащищенный РДВ-302-5.
2.954.000 ТУ";
Габаритные и установочные размеры РДВ-302 с резьбовым
присоединением на объекте

Габаритные и установочные размеры РДВ-302 со стыковым присоединением
NAMUR

Габаритные и установочные размеры РДВ-303

Габаритные и установочные размеры РДВ-304 с резьбовым
присоединением на объекте

Габаритные и установочные размеры РДВ-304 со стыковым присоединением
NAMUR

